Все строящиеся дома и готовые новостройки
Москвы и Московской области
Москва и МО

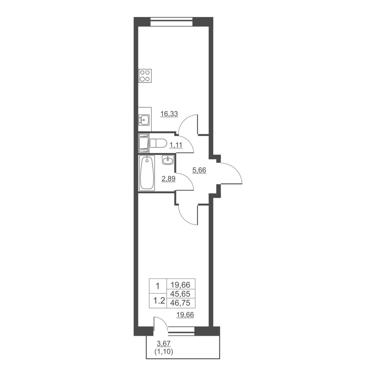
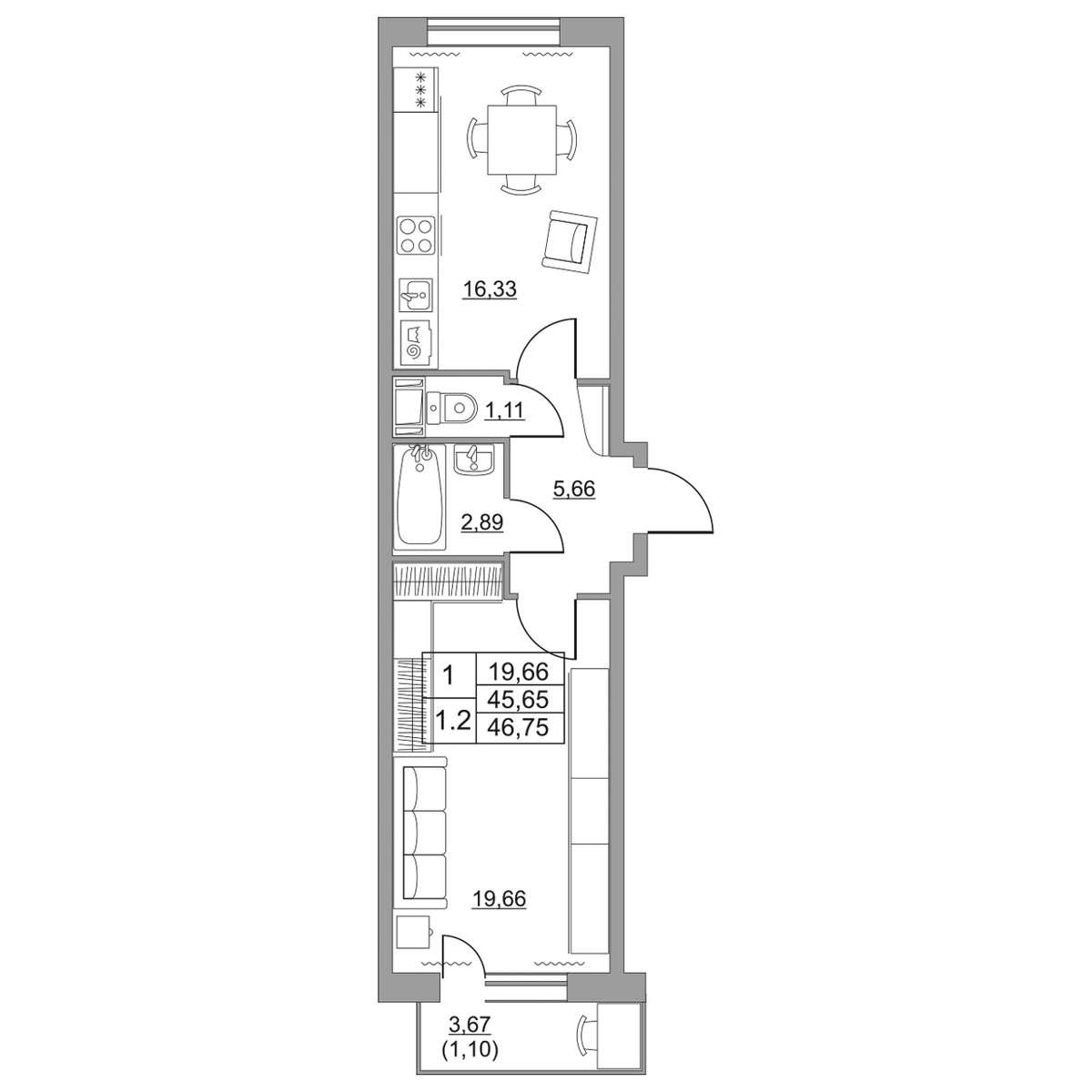
Квартира 1-комн., 45 м2, 10/11 этаж,
Западный проезд, д.13/1

5 094 000 руб.

112 450 руб./м²
  • Москва, Западный проезд, д.13/1

Основные характеристики

  • Срок сдачи 2022 г.
  • Этаж 10 этаж 11-этажного дома
  • Комнат 1
  • Общая площадь 45.3 м²
  • Жилая площадь 19.66 м²
  • Площадь кухни 6.8 м²

Дополнительная информация

  • Апартаменты нет
  • Источник напрямую
  • ФЗ-214 нет
  • Ремонт да
  • Название ЖК ЖК «Невские панорамы»
  • Корпус дома 1

Инфраструктура

Описание

Продается однокомнатная квартира в сданном жилом комплексе на 10 этаже одинадцатиэтажного дома. Общая площадь 45.30 кв. м. чистовая отделка от застройщика Жилой комплекс комфорт-класса «Невские Панорамы» находится в поселке им. Свердлова Всеволожского района, на живописном берегу Невы, в окружении природы. Проект представляет собой 9-11-этажный дом с широким разнообразием планировочных решений. Квартирография комплекса представлена студиями, однокомнатными, двухкомнатными, трехкомнатными и четырехкомнатными квартирами. Транспортная доступность КАД - 10 км «Ломоносовская» - 18 мин. на общественном транспорте. Инфраструктура В шаговой доступности располагаются школа, детский сад, поликлиника, магазины «Пятерочка» и «Магнит», отделение Сбербанка, почта. Ключевые преимущества Панорамные виды на Неву Развитая инфраструктура рядом Удобная транспортная доступность Идеальный вариант для комфортной жизни в за городом в живописной локации с видами на Неву. Прямая продажа. Без обременений: нет никаких юридических ограничений, квартира готова к продаже. [#7735726#]

Актуальные предложения

5 094 000 руб. 112 450 руб./м² Квартира 1-комн., 45 м2, 10/11 этаж, Западный проезд, д.13/1
Позвоните мне