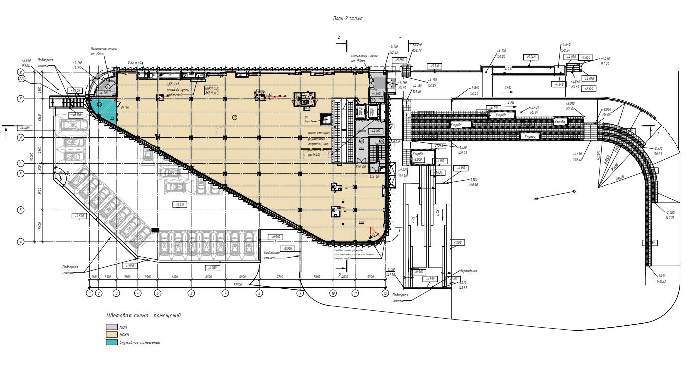
Помещение
1475 м2,
1/2
этаж,
1-й Донской жилой комплекс
380 093 268 руб.
257 760 руб./м²- Москва, 1-й Донской жилой комплекс
Основные характеристики
- Этаж 1 этаж 2-этажного дома
- Общая площадь 1474.6 м²
- Назначение помещения торговое помещение
Дополнительная информация
- Источник напрямую
- Ремонт да
Инфраструктура
Продажа отдельно стоящего двухэтажного здания, предназначенного для размещения торгового центра. Здание расположено в центральной части жилого комплекса «1-й Донской» — на первой линии домов, с собственной зоной входов/выходов. Локация и трафик ТЦ находится в густонаселенном районе с высокой плотностью жилой застройки. Комплекс формируется вокруг нового общественного центра, а само здание оказывается в точке естественного притяжения пешеходов и автомобилистов. Транспортная доступность 15 минут пешком до станции «Калинина» (МЦД-5) — пассажиропоток линии обеспечивает дополнительный транзитный трафик. 20 минут на автомобиле от метро Домодедовская — удобный подъезд для гостей из соседних районов. Аудитория и емкость рынка На территории ЖК будет построено пять 16–17-этажных многосекционных корпусов. Общее население жилого комплекса — более 8 000 человек. Это постоянные покупатели без необходимости привлечения трафика «с нуля» — дети, взрослые, семьи с разными уровнями дохода. Срок реализации Ввод в эксплуатацию — 1 квартал 2027 года. Это возможность войти в проект на стадии строительства и получить лучшие коммерческие условия! [#8190827#]
Актуальные предложения