Все строящиеся дома и готовые новостройки
Москвы и Московской области
Москва и МО

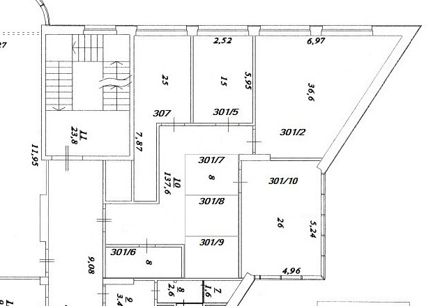
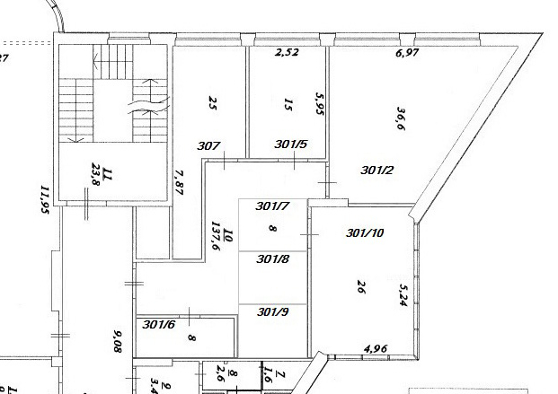
Помещение 37 м2, 3/9 этаж,
Репина, д. 2/27

61 000 руб./мес.

  • Московская обл, Репина ул, д. 2/27

Основные характеристики

  • Этаж 3 этаж 9-этажного дома
  • Общая площадь 36.6 м²
  • Назначение помещения офисное помещение

Дополнительная информация

  • Источник напрямую
  • Залог да
  • Ремонт да
  • Вид из окон на улицу
  • Покрытие пола ламинат
  • Высота потолков, м 3

Инфраструктура

Описание

Аренда офисного помещения площадью 36,6 м 2 на 3 этаже 9-этажного здания м. Беломорская, в 3 км от МКАД, предоставляется юридический адрес. Высота потолков: 3 м. Офис предоставляется в прямую аренду, срок аренды - любой, с предоплатой за 2 месяца, также возможны арендные каникулы. Включено в ставку: коммунальные платежи, эксплуатационные расходы. Минимальный срок аренды 1 мес. Офис со стандартной отделкой, комнат в аренду - 1, внутри кабинетная планировка, на полу линолеум, тип окон - обычные, окна выходят на улицу. Вход в офис - общий с улицы. [#8137226#]

Актуальные предложения

61 000 руб./мес. Помещение 37 м2, 3/9 этаж, Репина, д. 2/27
Позвоните мне