Помещение
225 м2,
5/5
этаж,
Гостиничный проезд, д.6к2
280 000 руб./мес.
- Москва, Гостиничный проезд, д.6к2
Основные характеристики
- Этаж 5 этаж 5-этажного дома
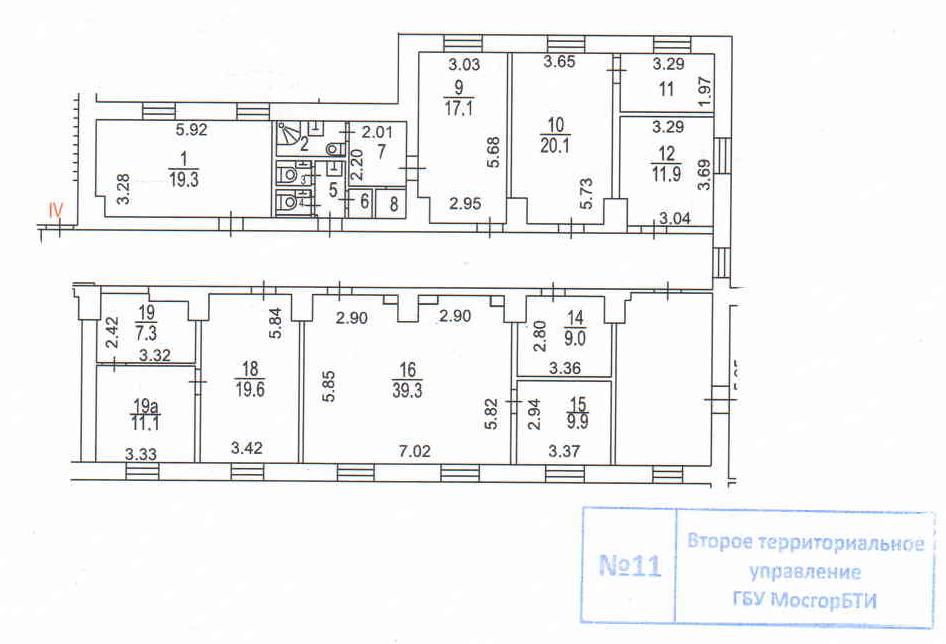
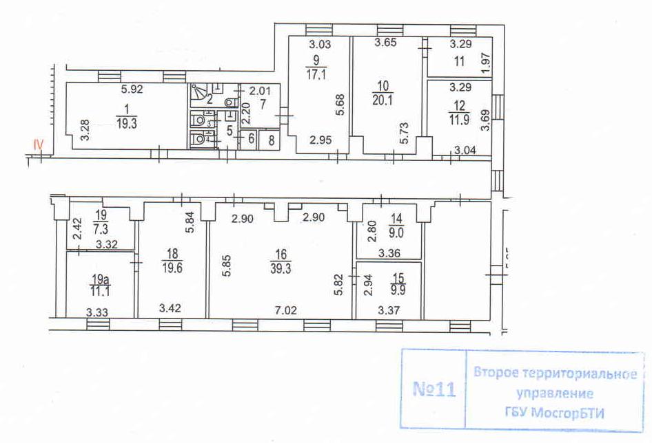
- Общая площадь 225 м²
- Назначение помещения офисное помещение
Дополнительная информация
- Предоплата 100 %
- Источник напрямую
- Залог да
- Ремонт да
- Наличие интернета да
- Вид из окон во двор и на улицу
- Покрытие пола ламинат
- Наличие лифта да
- Высота потолков, м 3
Инфраструктура
Сдам офис 225 м2 в бизнес-центре класса B у метро Окружная. Дизайнерский ремонт, 12 кабинетов, Цена: 280 000 в месяц (14 933 /м2/год) Адрес: Москва, Гостиничный проезд, 6к2 (район Марфино, СВАО) Этаж: 5 из 5 Площадь: 225 м2 Локация и транспорт Офис расположен в непосредственной близости от транспортного узла: Метро: 1 минута пешком до станции Окружная (Люблинско-Дмитровская линия). МЦД: Станция Окружная МЦД-1 (D1) в шаговой доступности. ТТК: Удобный выезд на Третье транспортное кольцо и Дмитровское шоссе. Бизнес-центр и инфраструктура Класс: Бизнес-центр класса B. Управление: Прямая аренда от собственника (ИФНС №15). Безопасность и доступ: Круглосуточная охрана, свободный доступ в здание 24/7. Лифт: Есть. Всё рядом: На территории/в здании работают аптека, кафе, медицинский центр, ресторан. Характеристики помещения Планировка: Смешанная (коридорная система + 12 отдельных кабинетов). Состояние: Очень хорошее, дизайнерский ремонт. Косметическое обновление не требуется. Высота потолков: 3 метра. Окна: Пластиковые, панорамное остекление. Окна выходят на две стороны (во двор и на улицу) — отличная естественная освещенность. Отделка: На полу качественный ламинат. Вентиляция и климат: Оснащено сплит-системами и отдельной системой приточной вентиляции. Санузлы: Две «мокрые точки» (санузла) внутри офиса. Парковка Наземная парковка у БЦ. Выделены места для гостевых автомобилей. Парковка предоставляется бесплатно. Условия аренды Ставка: 280 000 рублей в месяц. Коммунальные платежи: Оплачиваются отдельно (по счетчикам, согласно договору с управляющей компанией). Минимальный срок аренды: 11 месяцев. Схема оплаты: Предоплата за 1 месяц страховой депозит за последний месяц. Юридический адрес: Предоставляется (возможность постановки на учет). Доступ: Свободный, круглосуточный. Освобождение: Помещение освобождается в апреле (можно согласовать просмотр заранее). Преимущества офиса Готовый бизнес-офис: Не нужно делать ремонт — 12 кабинетов и коридор уже выполнены в дизайнерском стиле. Отдельно сдача не рассматривается. Климат-контроль: Своя приточная вентиляция и сплит-системы в каждом помещении. Транспорт: Реальная пешая доступность от метро (менее 100 метров). Удобство: Два санузла внутри, бесплатная парковка, круглосуточный доступ. [#8092663#]
Актуальные предложения