Все строящиеся дома и готовые новостройки
Москвы и Московской области
Москва и МО

Помещение 1728 м2, 1/21 этаж,
Вернадского проспект, д.92к1

600 000 000 руб.

347 323 руб./м²
  • Москва, Вернадского проспект, д.92к1

Основные характеристики

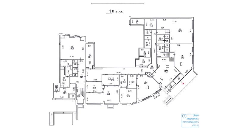
  • Этаж 1 этаж 21-этажного дома
  • Общая площадь 1727.5 м²
  • Назначение помещения офисное помещение

Дополнительная информация

  • Источник напрямую

Инфраструктура

Описание

Предложение, на которое стоит обратить Ваше внимание! Прямая продажа от собственника! Офис расположен в элитном ЖК "Корона Эйр" и имеет отдельный вход не только в здание, но и на территорию ЖК. Двухэтажный офис общей площадью 1727,5 кв.м. Высота потолков на первом этаже 3,6 м, на втором 3,2 м. Помещение офиса оснащены всем необходимым для комфортной и полноценной работы руководителей и сотрудников (кабинеты руководителей, приемные, кабинеты сотрудников, зал совещаний, серверная, 8 уборных, кухня, комната приема пищи и т.д.). Установлена система видеонаблюдения, вентиляция, кондиционирование. Закрытая территория ЖК имеется две большие наземные парковки и подземный паркинг, а также имеет собственный зоопарк, парк и водоем. За офисом закреплено 10 машиномест на наземной парковке. [#8090084#]

Актуальные предложения

600 000 000 руб. 347 323 руб./м² Помещение 1728 м2, 1/21 этаж, Вернадского проспект, д.92к1
Позвоните мне