Все строящиеся дома и готовые новостройки
Москвы и Московской области
Москва и МО

Помещение 111 м2, 1/6 этаж,
Знаменка ул, 13 3

250 000 руб./мес.

  • Москва, Знаменка ул, 13 3

Основные характеристики

  • Этаж 1 этаж 6-этажного дома
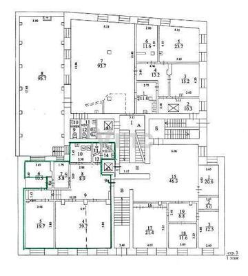
  • Общая площадь 111.4 м²
  • Назначение помещения коммерческая

Дополнительная информация

  • Предоплата 100 %
  • Источник через агента
  • Наличие парковки да

Инфраструктура

Описание

БЕЗ КОМИССИИ! ПРЯМАЯ АРЕНДА!

Аренда нежилого помещения в центре Москвы
Адрес: Москва, ул. Знаменка, д. 13, стр. 3
Площадь помещения: 111,4 кв. м
Расположение: 1 этаж административного здания.
4 кабинета + 2 помещения под хозяйственные нужды + санузел
НДС. Юр. Адрес. ИФНС № 4
Преимущества объекта:
1. Отдельный вход/выход
2. Возможность парковки (предоставление машиноместа по отдельному договору аренды) в центре Москвы.
3. Шаговая доступность от станции метро (м. "Боровицкая", м. "Библиотека имени Ленина", м. "Арбатская")

Инфраструктура офисного пространства:
1. Приточно-вытяжная вентиляция
2. Отдельные кондиционеры в кабинетах.
3. Круглосуточная охрана
4. Видеонаблюдение
5. В здании также расположен ресторан
6. Возможность изменения конфигурации кабинетов (за исключением несущих стен!)

Евгений Р.

Актуальные предложения

250 000 руб./мес. Помещение 111 м2, 1/6 этаж, Знаменка ул, 13 3
Позвоните мне