Все строящиеся дома и готовые новостройки
Москвы и Московской области
Москва и МО

Помещение 441 м2, 1/16 этаж,
Центральная, д. 16к1

114 530 000 руб.

260 000 руб./м²
  • Московская обл, Центральная ул, д. 16к1

Основные характеристики

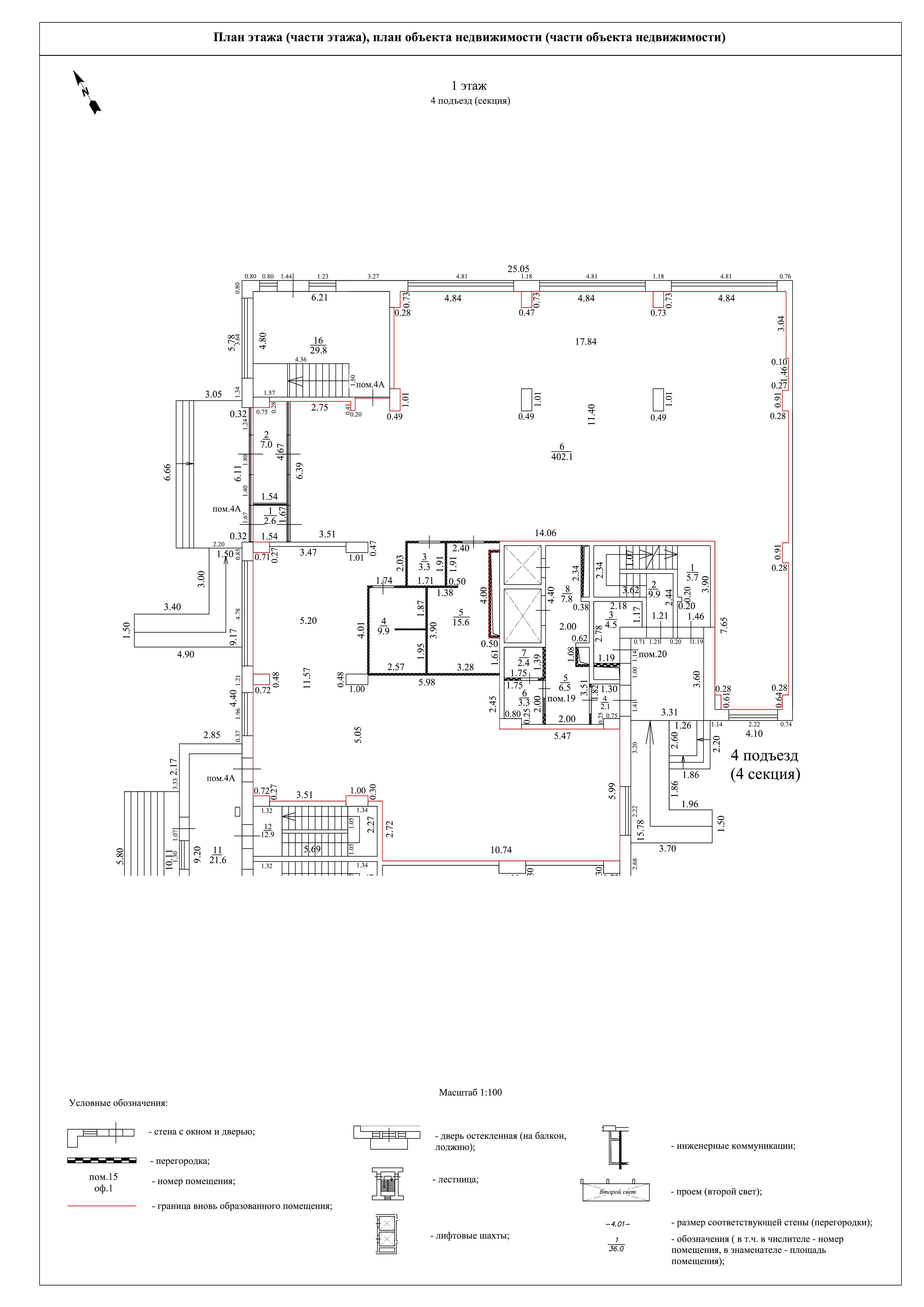
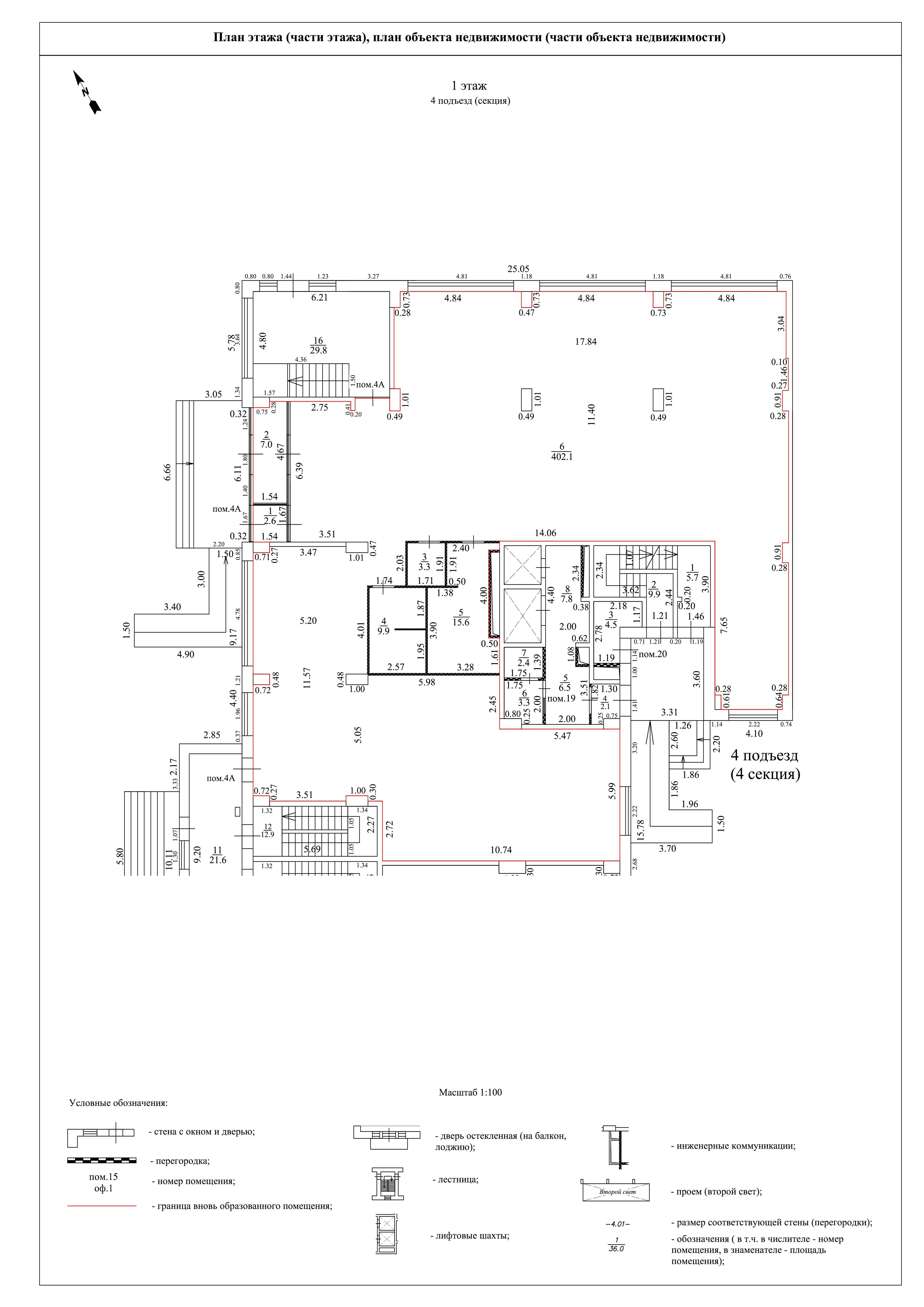
  • Этаж 1 этаж 16-этажного дома
  • Общая площадь 440.5 м²
  • Назначение помещения торговое помещение

Дополнительная информация

  • Источник через агента
  • Вид из окон во двор и на улицу
  • Высота потолков, м 4.3

Инфраструктура

Описание

Продается торговое помещение на первой линии, общей площадью 440.5 кв.м. Торговое помещение расположено на первом этаже в 16-ти этажном жилом доме, имеет два отдельных входа. Продажа от собственника. Вся дополнительная информация по запросу. [#7791003#]

Актуальные предложения

114 530 000 руб. 260 000 руб./м² Помещение 441 м2, 1/16 этаж, Центральная, д. 16к1
Позвоните мне