Все строящиеся дома и готовые новостройки
Москвы и Московской области
Москва и МО

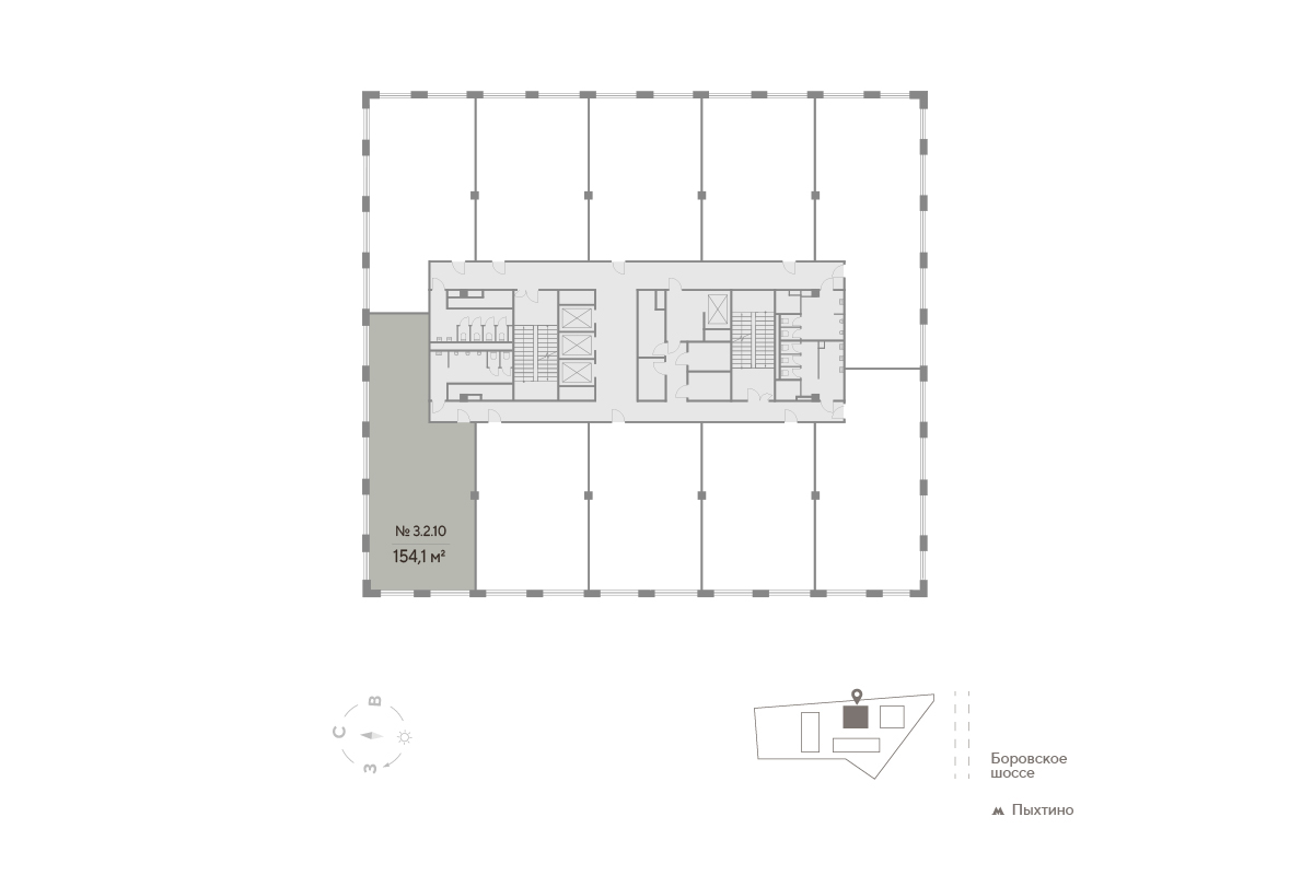
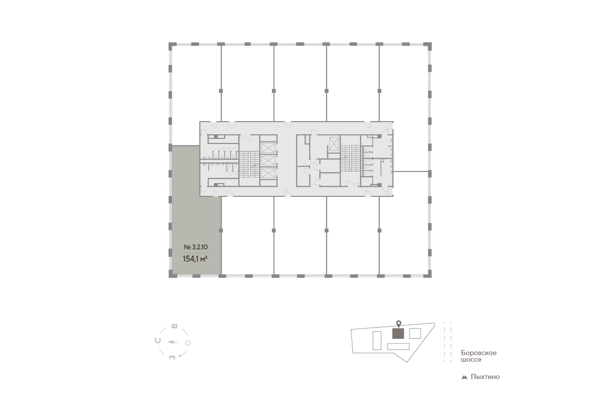
Помещение 105 м2, 2/5 этаж,
19 квартал, д.1стр3

26 565 000 руб.

253 000 руб./м²
  • Москва, 19 квартал, д.1стр3

Основные характеристики

  • Этаж 2 этаж 5-этажного дома
  • Общая площадь 105 м²
  • Назначение помещения офисное помещение

Дополнительная информация

  • Источник напрямую
  • Ремонт да
  • Наличие интернета да
  • Вид из окон во двор и на улицу
  • Наличие лифта да
  • Наличие парковки да
  • Высота потолков, м 3.8

Инфраструктура

Описание

Бизнес-парк "Переделкино" | Класс A | Введен в эксплуатацию! 10 мин пешком м. Пыхтино Комиссия брокерам - 3% Рассрочка 0% | ПВ - 10% | Возмещение НДС с каждого платежа | При 100% оплате скидка ПЕРЕДЕЛКИНО — это современный камерный бизнес-парк класса A из четырех пятиэтажных зданий с панорамным остеклением, расположенный на территории Новой Москвы в окружении леса и вблизи основных транспортных автомагистралей (Боровское ш, Киевское ш, Минское ш, Можайское ш) - Офисное помещение 105 м2 на 2 этаже (корпус 3) - Панорамное остекление - Отделка shell and core - Высота потолков 3,8 м - Шаг колонн 8,1 м * 8,4 м Транспортная доступность: - 10 минут пешком от м. Пыхтино - 9 км от МКАД - 35 минут до центра Москвы Инфраструктура: - Благоустроенная территория с прилегающей лесополосой - Прогулочный бульвар с кафе и ресторанами - Природный коворкинг в окружении леса - На первых этажах офисных зданий просторные лобби с комфортной зоной ожидания, супермаркет, торговые помещения, отделения банков и сервисных служб, фитнес-студия - Охраняемый наземный паркинг - Зарядные станции для электромобилей Ближайшее окружение: - Парк Рассказовка - Горнолыжный склон Ново-Переделкино - Спорткомплекс Арктика - Дом творчества писателей Переделкино - Внуково Аутлет Вилладж - Рестораны Сыроварня, Кофемания, Библиотека Развитие Новой Москвы, растущая дорожная сеть, строящиеся жилые комплексы все это говорит о блестящих перспективах территории. У вас есть возможность получить высочайший уровень комфорта и сервиса. При этом, покупая небольшой офис или целое здание под штаб-квартиру компании, можете быть уверены, что делаете выгодную инвестицию. Более подробную информацию можно уточнить у менеджера по телефону. Все представленные проектные решения являются предварительными. [#7789521#]

Актуальные предложения

26 565 000 руб. 253 000 руб./м² Помещение 105 м2, 2/5 этаж, 19 квартал, д.1стр3
Позвоните мне