Все строящиеся дома и готовые новостройки
Москвы и Московской области
Москва и МО

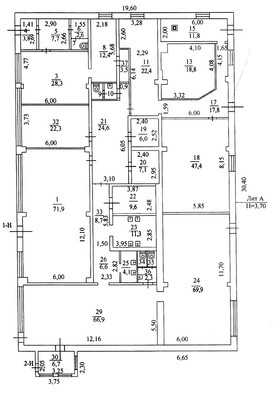
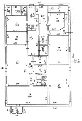
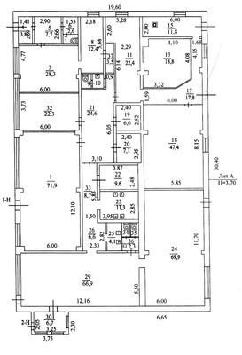
Помещение 503 м2, 1/1 этаж,
11-я линия, 20А

29 999 999 руб.

59 690 руб./м²
  • Москва, 11-я линия, 20А

Основные характеристики

  • Этаж 1 этаж 1-этажного дома
  • Общая площадь 502.6 м²
  • Назначение помещения коммерческая

Дополнительная информация

  • Источник через агента
  • Наличие парковки да
  • Высота потолков, м 3.7

Инфраструктура

Описание

Арт. 126354194 РЕДКОЕ ПРEДЛОЖEНИЕ !!!
Отдельностоящее здание с газом и коммуникациями в Отрадном!
МОЖНО ПРИОБРЕСТИ ПОЛОВИНУ ОБЪЕКТА!
Идeальнo для сдачи в аренду под производство или склад. Сейчас половина объекта сдано Ozon и Wildberries. Общий МАП - 300 000 в месяц. Возможно увеличение за счет сдачи в аренду второй половины здания! Тихая улица в частном секторе. Всегда есть места для парковки. Удобный подъезд для автомобилей.
ПРО ДОКУМЕНТЫ:- Зданием и землёй владеет один совершеннолетний собственник.- Земельный участок под зданием в собственности!- Отдельный кадастр
ПРО ЗДАНИЕ и ЗЕМЛЮ:- Кирпичное здание 1973 года постройки- Ленточный фундамент, толщина стен два кирпича- Центральный водопровод- Подключён газ- Отопление газовый котёл- Категория земли под зданием: земли населенных пунктов- ВРИ: для эксплуатации здания магазина- Общая площадь всего здания 502,6 кв.м. - Фото о состоянии внутри по запросу.
Звоните, пишите, приходите на просмотр

Актуальные предложения

29 999 999 руб. 59 690 руб./м² Помещение 503 м2, 1/1 этаж, 11-я линия, 20А
Позвоните мне