Все строящиеся дома и готовые новостройки
Москвы и Московской области
Москва и МО

Помещение 283 м2, 3/3 этаж,
Устье С и Ко снт

450 000 руб./мес.

  • Москва, Устье С и Ко снт

Основные характеристики

  • Этаж 3 этаж 3-этажного дома
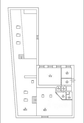
  • Общая площадь 283 м²
  • Назначение помещения коммерческая

Дополнительная информация

  • Предоплата 100 %
  • Источник через агента
  • Наличие парковки да

Инфраструктура

Описание

От собственника.

В ренду ПСН, Офис, креативное пространство, 283м2 / 450 000 ₽/мес.

Общая площадь - 283 кв. м. Мансарда занимает 227кв. м.

В блоке14 окон.

Планировка: 3 изолированные части (можно разделить для разных задач).

Два санузла.

УСНО. ИФНС №1.

Подходит под: медицинский центр, каворкинг, йогу, офис, галерею, креативное пространство, студию, обучающий цент.

Евгений Р.

Актуальные предложения

450 000 руб./мес. Помещение 283 м2, 3/3 этаж, Устье С и Ко снт
Позвоните мне