Все строящиеся дома и готовые новостройки
Москвы и Московской области
Москва и МО

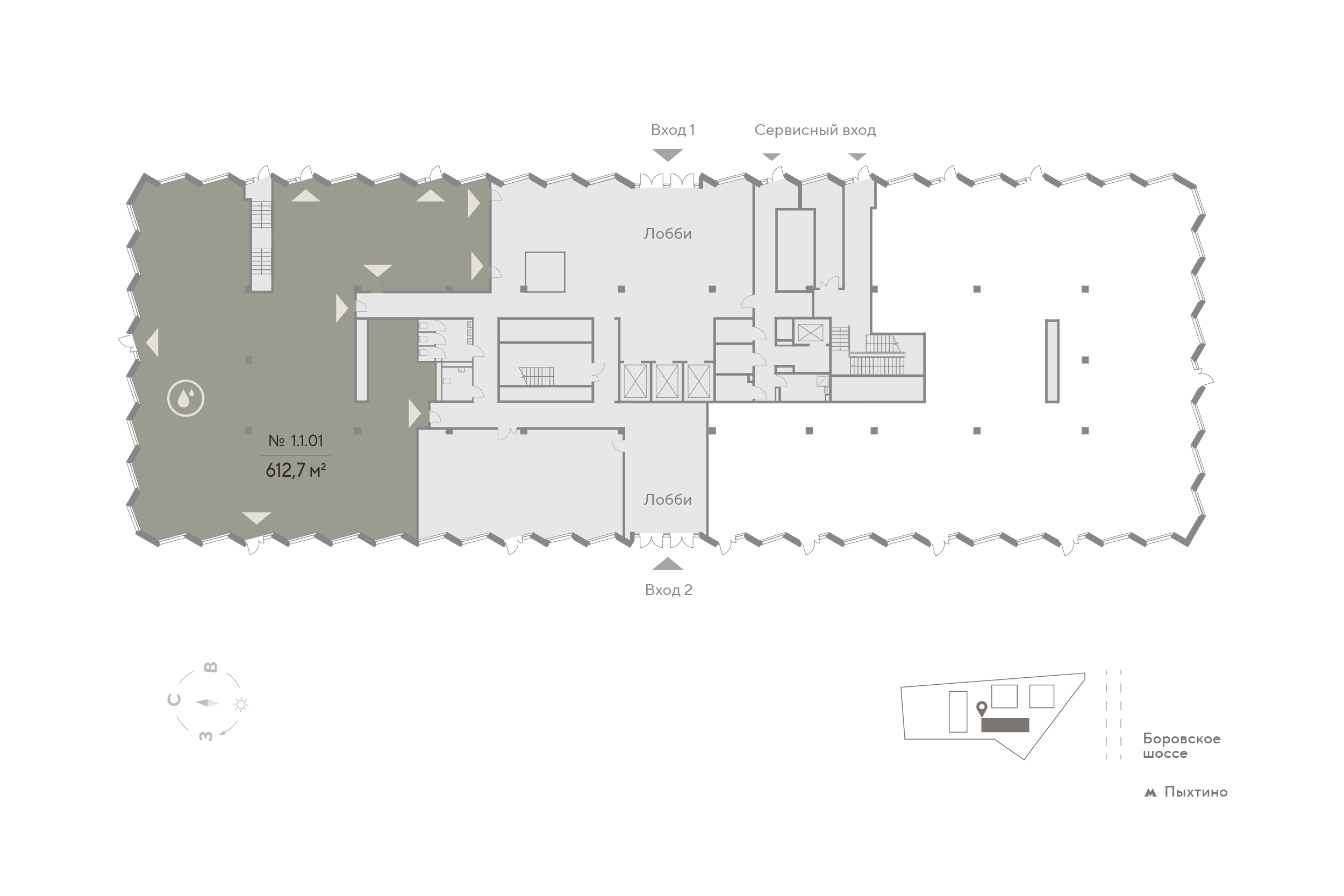
Помещение 613 м2, 1/5 этаж,
19 квартал, д.1стр1

194 777 330 руб.

317 900 руб./м²
  • Москва, 19 квартал, д.1стр1

Основные характеристики

  • Этаж 1 этаж 5-этажного дома
  • Общая площадь 612.7 м²
  • Назначение помещения торговое помещение

Дополнительная информация

  • Источник напрямую
  • Ремонт да
  • Наличие интернета да
  • Вид из окон во двор и на улицу
  • Высота потолков, м 5.3

Инфраструктура

Описание

Продажа торговых помещений в Бизнес-парке ПЕРЕДЕЛКИНО Предложение от застройщика! Рассрочка 0%. Возврат НДС. Комиссия брокерам - 3% При оплате 100% - скидки! ПЕРЕДЕЛКИНО — это современный камерный бизнес-парк класса A состоящий из четырех пятиэтажных зданий с панорамным остеклением, расположенный на территории Новой Москвы в окружении леса и активной жилой застройки. В непосредственной близости от основных транспортных магистралей - Боровское ш, Киевское ш, Минское ш, Можайское ш. - Первая линия Боровского шоссе - 10 минут пешком от м. Пыхтино - Открытая территория - Охрана 24/7 - Пешеходный бульвар с возможностью организации летних террас - Оптимальные площади для всех видов бизнеса Предлагается к продаже торговое помещение 612,7 м2 на 1 этаже - Витринное остекление по фасаду - Высота потолков 5,3 м - Отдельные входы с улицы и из лобби (9 независимых входов) - Наличие мест для размещения рекламных вывесок - Наличие мокрых точек. - Электрическая мощность до 200 Вт/м2 - Нагрузка на пол до 1 000 кг/м2 - Современная противопожарная система с оповещением Трафик - Резиденты бизнес-парка - Резиденты ЖК в шаговой доступности (более 21 000) и ближайшем окружение (более 67 000 чел.) Новая Москва. Новая деловая перспектива. Растущая дорожная сеть, строящиеся жилые комплексы, десятки тысяч крупных, средних и малых бизнесов - все это говорит о блестящих перспективах территории. Вы можете быть уверены, что делаете выгодную инвестицию. Более подробную информацию можно уточнить у менеджера по телефону. [#7748729#]

Актуальные предложения

194 777 330 руб. 317 900 руб./м² Помещение 613 м2, 1/5 этаж, 19 квартал, д.1стр1
Позвоните мне