Все строящиеся дома и готовые новостройки
Москвы и Московской области
Москва и МО

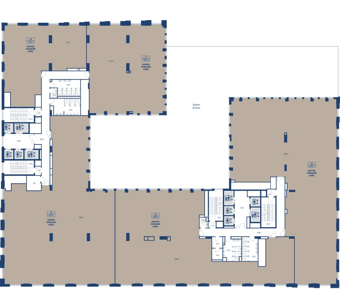
Помещение 176 м2, 12/26 этаж,
Тагильская улица, влд4

59 455 070 руб.

337 813 руб./м²
  • Москва, Тагильская улица, влд4

Основные характеристики

  • Этаж 12 этаж 26-этажного дома
  • Общая площадь 176 м²
  • Назначение помещения офисное помещение

Дополнительная информация

  • Источник напрямую

Инфраструктура

Описание

Продается коммерческое помещение общей площадью 176 м2 на 12 этаже в строящемся бизнес-центре АФИ2В Тагильская. 26-этажный бизнес-центр АФИ2В Тагильская от девелопера с мировым именем AFI Development - это инновационный комплекс, задающий новый стандарт деловых пространств на востоке Москвы. Проект объединяет статусные офисы, ресторанный дворик, супермаркет и озеленённую террасу, создавая полноценную экосистему для бизнеса. На первых этажах расположатся торговая галерея, ресторанный дворик и просторное лобби. Подземный паркинг на 200 машино-мест создаст удобную логистику для резидентов и гостей комплекса. Эргономичные openspace-планировки дадут возможность организовать на каждом этаже функциональные рабочие зоны, переговорные комнаты, кабинеты руководителей, конференц-зал, бизнес-гостиные и зоны отдыха. За счет неглубокой посадки офисов и панорамного остекления все помещения хорошо освещаются естественным образом. Современные инженерные системы (приточно-вытяжная вентиляция, мультизональное кондиционирование) и централизованная система управления зданием (BMS) гарантируют комфортный микроклимат и энергоэффективность. Круглосуточная охрана, видеонаблюдение и консьерж-сервис обеспечивают безопасность и высокий уровень сервиса. Стратегическое расположение на Открытом шоссе обеспечивает отличную логистику: всего 6 минут пешком до станции МЦК «Бульвар Рокоссовского» и 9 минут пешком до одноименной станции метро. 15 минут до МКАД и ТТК. Рядом расположены ЖК «Сиреневый парк», «парк Лосиный Остров» и вся необходимая социальная инфраструктура. Ввод в эксплуатацию запланирован на III квартал 2026 года. Действует рассрочка 0% до конца строительства. [#7698679#]

Актуальные предложения

59 455 070 руб. 337 813 руб./м² Помещение 176 м2, 12/26 этаж, Тагильская улица, влд4
Позвоните мне