Все строящиеся дома и готовые новостройки
Москвы и Московской области
Москва и МО

Помещение 112 м2, 1/12 этаж,
Молодежная улица, д.5

27 000 000 руб.

241 071 руб./м²
  • Москва, Молодежная улица, д.5

Основные характеристики

  • Этаж 1 этаж 12-этажного дома
  • Общая площадь 112 м²
  • Назначение помещения готовый бизнес

Дополнительная информация

  • Источник через агента
  • Ремонт да

Инфраструктура

Описание

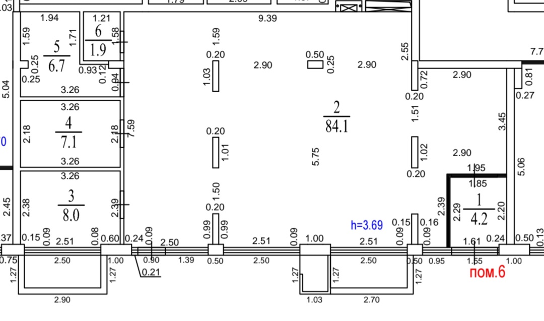
Продается Нежилое помещение 112 м2 с арендатором — готовый арендный бизнес, 1-я линия. Площадь: 112 м2, 1 этаж; Назначение: свободное; Состояние: качественный дизайнерский ремонт; Высота потолков: 3,6 м; Электрическая мощность: 45 кВт; Парковка: вокруг дома(бесплатная). Локация: 1-я линия от дороги, 2 метра от остановки общественного транспорта. Оживлённый пешеходный и автомобильный трафик. Доходность: Объект с арендатором (юридическая фирма) МАП 164800 р. Договор аренды от мая 2023г. на срок 15 лет. Ежегодная индексация по соглашению сторон. [#6758411#]

Актуальные предложения

27 000 000 руб. 241 071 руб./м² Помещение 112 м2, 1/12 этаж, Молодежная улица, д.5
Позвоните мне