Все строящиеся дома и готовые новостройки
Москвы и Московской области
Москва и МО

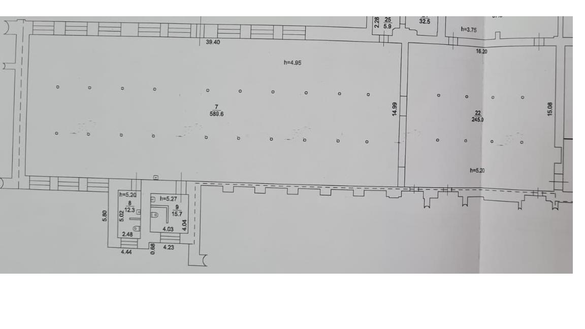
Помещение 600 м2, 1/2 этаж,
Советский, д. 3

250 000 руб./мес.

  • Московская обл, Коломна г, Советский пер, д. 3

Основные характеристики

  • Этаж 1 этаж 2-этажного дома
  • Общая площадь 600 м²
  • Назначение помещения помещение свободного назначения

Дополнительная информация

  • Предоплата 100 %
  • Источник через агента
  • Комиссия агента 50 %
  • Ремонт да
  • Наличие интернета да
  • Вид из окон во двор и на улицу
  • Высота потолков, м 5

Инфраструктура

Описание

Помещение в центре города, производство, склад, торговля, 1 эт. 600 м. кв, есть доп. площади. Между ними проход. Можно отдельно. Имеется подъезд с двух сторон: с улицы, первой линии и с внутренней Водоснабжение/канализация центральные, отопление своя газовая котельная, электричество с тремя разными подключениями 850 кВт. Помещение теплое. Установлены батареи отопления и тепловентиляторы. Есть счетчики воды и электричества. Каникулы, скидка. Помещение полностью готово к аренде. Аренда помещения в Подмосковье, аренда в Московской области, производство в Подмосковье, под производство Московской области, склад в Подмосковье, помещение в Московской области, производство в Московской области, склад в Московской области, производство, помещение для швейного цеха, есть оборудование [#8012913#]

Актуальные предложения

250 000 руб./мес. Помещение 600 м2, 1/2 этаж, Советский, д. 3
Позвоните мне