Помещение
288 м2,
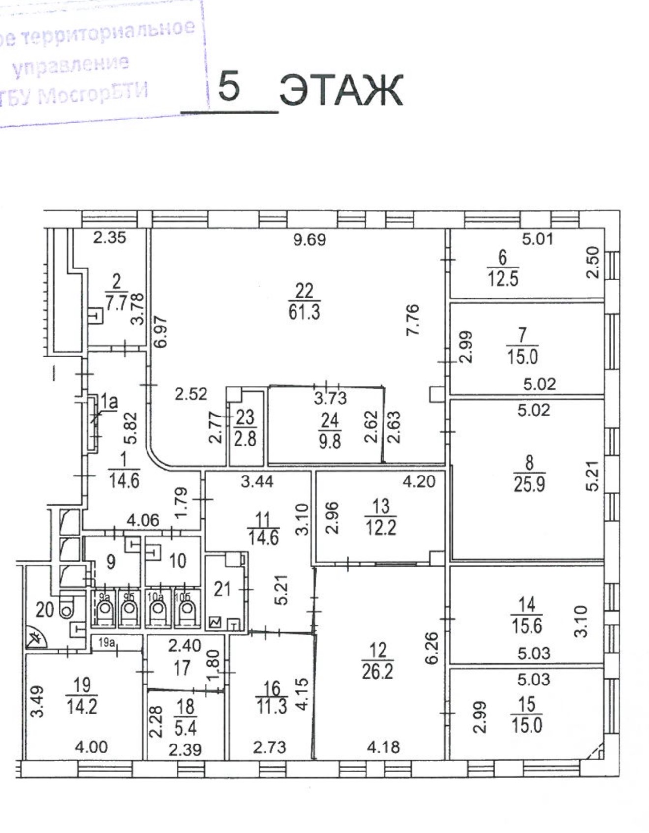
5/9
этаж,
Большой Саввинский переулок, д.11
148 000 000 руб.
514 604 руб./м²- Москва, Большой Саввинский переулок, д.11
Основные характеристики
- Этаж 5 этаж 9-этажного дома
- Общая площадь 287.6 м²
- Назначение помещения помещение свободного назначения
Дополнительная информация
- Источник через агента
- Ремонт да
- Высота потолков, м 2.9
Инфраструктура
Продается офисное помещение 287.6 м2 в престижном районе Хамовники в бизнес центре класса А Ключевые преимущества: Идеальная локация: Престижный район Хамовники, в 3 минутах на транспорте от станции метро «Киевская» (3 линии). Отличная цена: 148 000 000 руб. Выгодное предложение для центра Москвы. Универсальная площадь: 287.6 м2 идеально подходит для штаб-квартиры, представительства, медицинского или дизайнерского центра. Хорошая этажность: 5-й этаж из 9-ти. Оптимальный баланс видового положения, освещенности и доступности. 1. Общая информация: Адрес: Москва, ЦАО, район Хамовники, Большой Саввинский переулок, д. 11. Площадь: 287.6 кв. м. Цена: 148 000 000 рублей (возможен торг для серьезного покупателя). Цена за кв.м: ~51 460 руб. Назначение: нежилое помещение, под офис (требует уточнения в документах). 2. Характеристики здания и помещения: Здание: 9-этажное кирпичное с пропускной охранной системой Этаж: 5-й. Состояние: Помещение готовое для размещения Планировка: помещение разделено на два офиса с площадями 140 м2 и 147,6м2) Высота потолков: 2,9 м Вход: Отдельный вход с общего коридора. 3. Локация и инфраструктура: Район: Хамовники, один из самых респектабельных и экологичных районов в центре Москвы. Транспорт: 3 минуты до м. Киевская (Арбатско-Покровская, Филевская, Кольцевая линии). Отличная доступность на автомобиле: рядом Садовое кольцо, набережные, Киевский вокзал. Окружение: Развитая деловая и социальная инфраструктура: рестораны, банки, бизнес-центры, парки (Фрунзенская набережная), фитнес-клубы. 3 сан узла 4. Дополнительная информация: Коммуникации: Все необходимые городские коммуникации (электричество, вода, отопление). Парковка: Подземная, возможность аренды машиноместа Корпоративной штаб-квартиры или представительства. Юридической, консалтинговой, IT-компании. Медицинского центра или стоматологической клиники. Архитектурного или дизайнерского бюро. Дорогого ритейла или шоу-рума (при условии возможности размещения вывески).Продается офисное помещение 287.6 м2 в престижном районе Хамовники ____________________ 148 млн-стоимость [#7957220#]
Актуальные предложения