Помещение
553 м2,
-1/5
этаж,
Энтузиастов проезд, д.19А
60 000 000 руб.
108 499 руб./м²- Москва, Энтузиастов проезд, д.19А
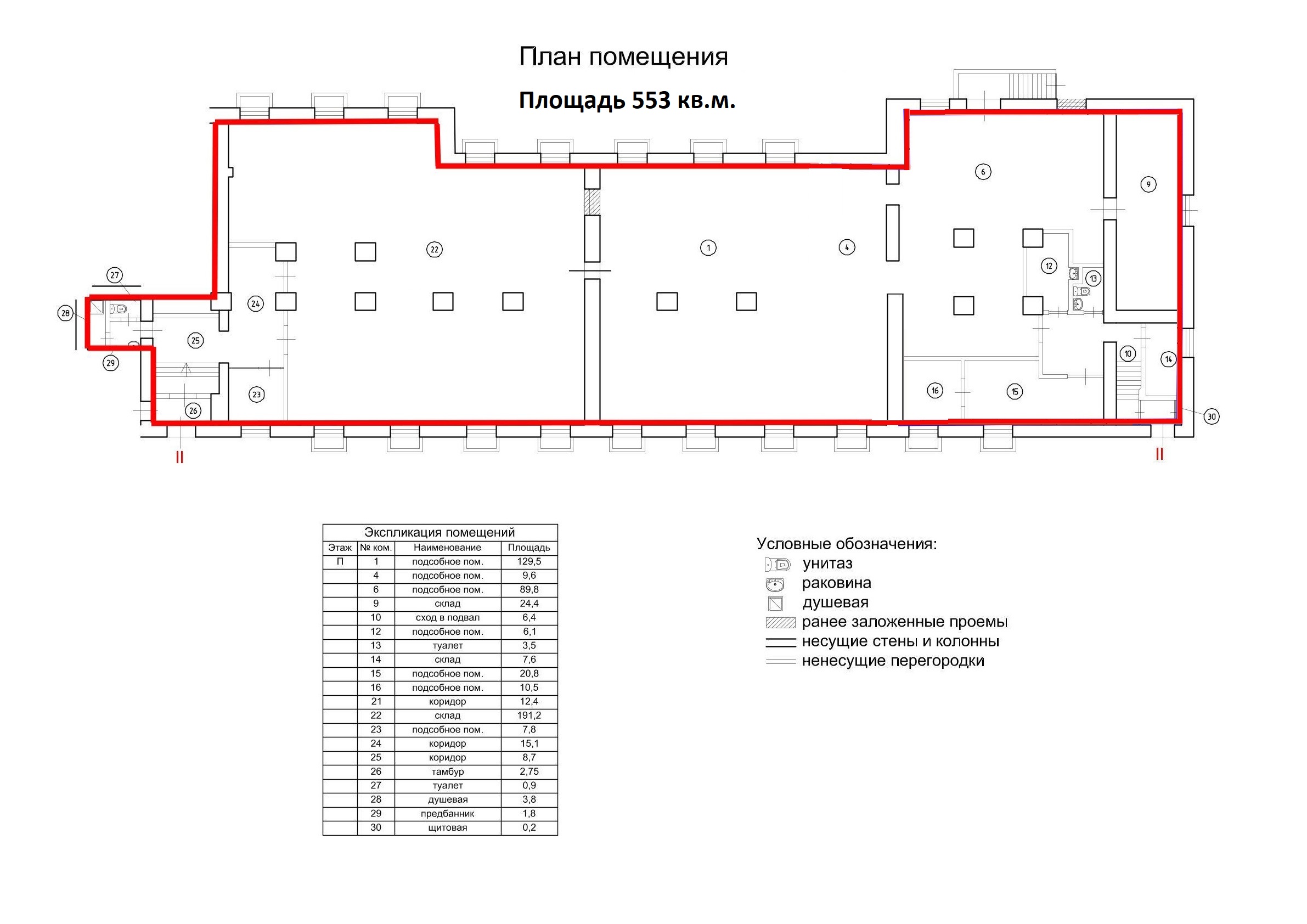
Основные характеристики
- Этаж подвал 5-этажного дома
- Общая площадь 553 м²
- Назначение помещения помещение свободного назначения
Дополнительная информация
- Источник через агента
- Ремонт да
- Наличие интернета да
- Вид из окон во двор и на улицу
- Наличие парковки да
- Высота потолков, м 3
Инфраструктура
Функциональные помещения для организации бизнеса, полностью оснащенный офис, готовый к запуску. Качественный ремонт, мебель, кухня, современные санузлы и душевые. Отдельные входы, погрузка/выгрузка и большая парковка. Площадь помещений 553 м2. Мощное электричество (70 кВт), вентиляция, сигнализация, центральные коммуникации. Выгодная локация: 300 м от метро, рядом с Шоссе Энтузиастов. Высокая проходимость и удобная транспортная доступность. Идеально для производства, офиса, склада, магазина или прибыльной сдачи в аренду (имеются заинтересованные арендаторы). [#7941813#]
Актуальные предложения